Del Jueves, 22 de Enero de 2026 al Domingo, 25 de Enero de 2026
El presupuesto de licitación asciende a casi 1,5 millones de euros y el plazo de ejecución de la obras es de 24 meses.
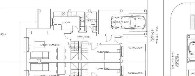
La Junta de Castilla y León, a través de la Consejería de Fomento y Medio Ambiente y de la Sociedad Pública de Infraestructuras y Medio Ambiente (Somacyl) ha sacado a licitación las obras de una promoción de 15 viviendas de protección unifamiliares por un presupuesto de 1.493.022 euros, a realizar en un plazo de 24 meses. Se trata de viviendas unifamiliares adosadas, en tres solares diferentes, que dan a las calles Elisardo Fernández y Felicitas Fidalgo, en la localidad de Santa Cristina de la Polvorosa, en Zamora.
Estas viviendas son de dos alturas y cuentan con una superficie útil total que ronda los 90 metros cuadrados, a los que hay que sumar 17,80 metros cuadrados a cada una de garaje cubierto y cerrado. Además, todas las viviendas tienen un jardín delantero de 9,5 metros cuadrados, y otro trasero que varía entre los 60 y los 140 metros cuadrados.
![[Img #141755]](https://interbenavente.es/upload/images/05_2021/1888_viviendassantacristina1.jpg)
En cuanto al proceso de promoción, cabe destacar que es proporcional a la demanda y se va a realizar por fases. La selección de los demandantes que cumplan las condiciones de acceso a una vivienda de protección la va a llevar a cabo el Ayuntamiento del municipio. Además, aquellos demandantes con edad inferior a 35 años tendrán una reducción del 20% en el precio de la vivienda.
Aparte de esta actuación, Somacyl tiene otras promociones en ejecución. En concreto, una de 16 viviendas unifamiliares adosadas en Guijuelo (Salamanca), otra de 19 viviendas en Aguilar de Campoo (Palencia) y una última de 6 viviendas unifamiliares adosadas en San Pedro Manrique (Soria). Asimismo, también hay varias promociones en tramitación, entre las que destacan una de 35 viviendas unifamiliares en Carracedelo (León), una de 20 en Villoria (Salamanca), una de 20 en Sanchonuño (Segovia), una de 19 en Doñinos (Salamanca), o una de 16 en Garray (Soria).
![[Img #141756]](https://interbenavente.es/upload/images/05_2021/6909_viviendassantacristina3.jpg)
![[Img #141757]](https://interbenavente.es/upload/images/05_2021/2825_viviendassantacristina2.jpg)




Normas de participación
Esta es la opinión de los lectores, no la de este medio.
Nos reservamos el derecho a eliminar los comentarios inapropiados.
La participación implica que ha leído y acepta las Normas de Participación y Política de Privacidad
Normas de Participación
Política de privacidad
Por seguridad guardamos tu IP
216.73.216.10