Del Jueves, 22 de Enero de 2026 al Domingo, 25 de Enero de 2026
La concejalía de Urbanismo ha puesto a disposición de los grupos políticos la documentación sobre el "Estudio de Detalle Benavente II" para aprobación definitiva en el próximo Pleno, previo dictamen de la Comisión Informativa.
El concejal del área, José Manuel Salvador, explicaba que desde la aprobación definitiva del PGOU de Benavente en el año 2007, se viene observando la necesidad de modificación del trazado de la zona industrial objeto de este Estudio de Detalle.
Su configuración en parcelas de gran fondo dificulta la implantación de las edificaciones industriales por las que se vienen interesando diferentes industrias. Por esta razón el Ayuntamiento decide redactar un Estudio de Detalle que establezca una ordenación detallada adecuada para el progreso de este ámbito manteniendo los objetivos de desarrollo industrial del Plan General.
Los terrenos objeto de este estudio incluye 6 unidades parcelarias y tienen una superficie conjunta según medición de 25.037,35 m2 (24.821 m2 catastrales) y una topografía sensiblemente horizontal. En su límite Este lindan con los márgenes de la autovía A6, al norte lindan con la parcela de la Calle Garcilaso de la Vega nº 7, al Oeste limita con la Calle Garcilaso de la Vega, y al Sur linda con la parcela de la Calle Garcilaso de la Vega nº 21.
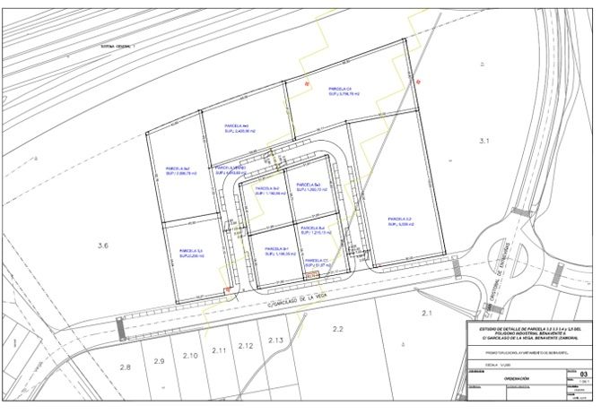
Plano de situación
![[Img #22158]](upload/img/periodico/img_22158.jpg)
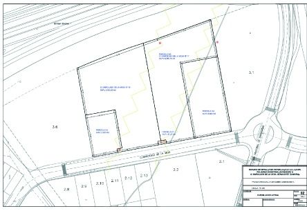
Parcelas actuales
![[Img #22159]](upload/img/periodico/img_22159.jpg)
El Estudio de detalle define un nuevo sistema local viario de titularidad y uso público en forma de “U” con acceso y salida desde la Calle Garcilaso de la Vega. Con ello se pretende generar una serie de parcelas a lo largo de su perímetro y cuatro parcelas centrales en su interior. Junto a la calzada se distribuyen una serie de aparcamientos en línea dejando paso a las distintas parcelas.
En cuanto a la calificación urbanística de las parcelas resultantes. La parcela destinada a Centro de Transformación se califica como Dotacional, Equipamiento Clase D, Servicios Urbanos.
La parcela de viario se califica como Dotacional Equipamiento Clase C, Sistema de transportes y comunicaciones, red viaria.
Las condiciones de volumen de la edificación asignadas al resto de parcelas resultantes son las correspondientes a la Norma Zonal 7.1. Respecto a las condiciones iniciales, esto únicamente supone la modificación de la ocupación máxima de las parcelas respecto a la actual, que pasaría del 60% al 70%. Este incremento de la ocupación no supone un aumento de la edificabilidad sobre el
conjunto del ámbito. Se define una única Unidad de Normalización coincidente con el ámbito del Estudio de Detalle sobre la que se redactarán los proyectos precisos para la posterior urbanización y reparcelación del ámbito.
Plano pendiente de aprobación
![[Img #22157]](upload/img/periodico/img_22157.jpg)




Normas de participación
Esta es la opinión de los lectores, no la de este medio.
Nos reservamos el derecho a eliminar los comentarios inapropiados.
La participación implica que ha leído y acepta las Normas de Participación y Política de Privacidad
Normas de Participación
Política de privacidad
Por seguridad guardamos tu IP
216.73.216.1