Día Sábado, 10 de Enero de 2026
Un proyecto duplo que realizan los alumnos menores de 35 años y mayores de 45 que sean parados de larga duración
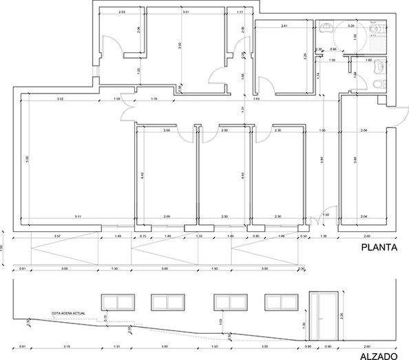
Un taller con una duración de 6 meses que tiene como objetivo la reforma del edificio de Lagares, antiguo cuartel de la Policía Local y que actualmente es un centro de servicio sociales en el que están ubicadas varias sedes asociativas.
En concreto las obras se centran en mejorar la accesibilidad, su habitabilidad y conseguir la eficiencia energética. Para ello se ha dotado al edificio de una nueva distribución interior que permite aprovechar más el espacio o la superficie útil del inmueble. El espacio se distribuye en 7 salas más dos baños uno de ellos adaptado para personas con minusvalías.
Para conseguir estos nuevos espacios se ha procedido a la demolición de tabiquerías y pavimentos, colocación de alicatados y baldosa hidráulica y de piedra regular o colocación de bordillos.
El Ayuntamiento de Benavente y la Junta de Castilla y León son las administraciones que financian este tipo de programas duplo.
![[Img #123901]](https://interbenavente.es/upload/images/12_2019/2921_ayto-informa.jpg)
![[Img #124085]](https://interbenavente.es/upload/images/12_2019/5768_planos-lagares.jpg)



Normas de participación
Esta es la opinión de los lectores, no la de este medio.
Nos reservamos el derecho a eliminar los comentarios inapropiados.
La participación implica que ha leído y acepta las Normas de Participación y Política de Privacidad
Normas de Participación
Política de privacidad
Por seguridad guardamos tu IP
216.73.216.2