Día Martes, 24 de Marzo de 2026
El periodo de las obras es de 2 meses
La adjudicación de las obras de reforma de vestuarios en la piscina municipal y refuerzo estructural de forjado se ha licitado por 90.635,05€ a la empresa Construcciones Pedro Sánchez Rodríguez S.L, después de que saliera la adjudicación con una partida inicial de 104.240€.
Con la firma de este contrato, el concejal de Deportes, Fernando Marcos indicaba que las obras de reforma en el vestuario femenino se iniciarán a mediados del mes de septiembre con un plazo de ejecución de dos meses. Durante este periodo de obras el vestuario masculino se acondicionará mediante divisiones para poder dar servicio a ambos usuarios.
Marcos destacaba la prioridad de estas obras ya que el vestuario femenino “era el que presentaba un peor estado”, añadiendo que también se mejorará las canalizaciones de agua “es una pena que podamos disfrutar de agua caliente gratis debido a las placas solares y el mal estado de las canalizaciones nos lo impida”.


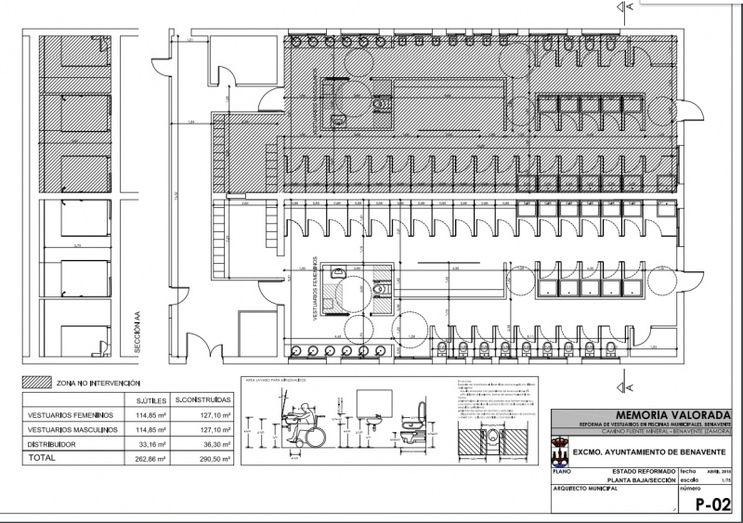
Tal y como señala la memoria del proyecto los vestuarios se encuentran en un estado significativo de deterioro, alcanzando las obras a la compartimentación existente, a la carpintería interior y exterior y a la adecuación de las distintas instalaciones y acabados. Por otro lado, el deterioro de las viguetas del forjado anteriormente citado, hacen necesaria la intervención de refuerzo.
En lo referente a la reforma de los vestuarios, el deficiente estado de conservación de las instalaciones y acabados hacen necesaria la intervención. La misma plantea la reparación/sustitución de instalaciones y acabados de cara a que los vestuarios recuperen las condiciones precisas para su utilización. La intervención no alcanza a la estructura, formada en este cuerpo por forjados unidireccionales y muros de carga de fábrica que hacen las veces de cerramiento de sus fachadas. La intervención en el cerramiento se limita a la sustitución de las carpinterías exteriores. Se realizará la sustitución de gran parte de la tabiquería existente por una nueva tabiquería prefabricada de placas de cartón yeso.
Se procederá al levantado de las instalaciones de fontanería-saneamiento, electricidad y calefacción (se mantiene la caldera). Se demolerá toda la tabiquería interior, solados y soleras, y se procederá al levantado de la carpintería exterior e interior. Se demolerán alicatados de paramentos y se retirarán todos los sanitarios. Se desmontará el falso techo registrable, con recuperación de placas y perfilería.
Se colocarán nuevas carpinterías exteriores en PVC. Se ejecutará la nueva solera de mortero de cemento, previa colocación de tuberías de distribución de calefacción y colocación de aislante termorreflexivo. Se ejecutará tabiquería de placas de cartón-yeso.
Se renovarán las instalaciones eléctricas y de iluminación (incluso emergencia), de agua fría, saneamiento y ventilación, renovando las partes de las mismas obsoletas. Se instalarán nuevos sanitarios.
![[Img #95028]](upload/img/periodico/img_95028.jpg)
Se realizará un nuevo solado en gres porcelánico y se colocará un falso techo de placas de cartón yeso a la máxima altura que permita la estructura existente, de forma que pueda colocarse la instalación de ventilación oculta en falso techo. Sobre el falso techo se colocará manta de aislante termorreflexivo. En cuanto a los paramentos verticales, se alicatarán de suelo a falso techo.
Respecto al refuerzo estructural del forjado, y para evitar la interrupción del servicio, se plantea su refuerzo mediante el pegado de planchas de fibra de carbono en la cara inferior de las viguetas de hormigón. Sobre la estructura metálica existente, se aplicará una pintura intumescente.
Desde la concejalía, Fernando Marcos añade que se intenta priorizar los proyectos más necesarios para garantizar un buen servicio a los ciudadanos.




Normas de participación
Esta es la opinión de los lectores, no la de este medio.
Nos reservamos el derecho a eliminar los comentarios inapropiados.
La participación implica que ha leído y acepta las Normas de Participación y Política de Privacidad
Normas de Participación
Política de privacidad
Por seguridad guardamos tu IP
216.73.216.62