Del Viernes, 27 de Marzo de 2026 al Domingo, 05 de Abril de 2026
El presupuesto que se ha estimado desde el Ayuntamiento asciende a 86.148,75€
El Ayuntamiento saca a licitación las Obras de Reforma de vestuarios en la Piscina Municipal y el refuerzo estructural del forjado tras un proyecto redactado por el arquitecto municipal que se centrarán en cambiar y sanear la estructura de los vestuarios femeninos.
Tal y como señala la memoria del proyecto los vestuarios se encuentran en un estado significativo de deterioro, alcanzando las obras a la compartimentación existente, a la carpintería interior y exterior y a la adecuación de las distintas instalaciones y acabados. Por otro lado, el deterioro de las viguetas del forjado anteriormente citado, hacen necesaria la intervención de refuerzo.
En lo referente a la reforma de los vestuarios, el deficiente estado de conservación de las instalaciones y acabados hacen necesaria la intervención. La misma plantea la reparación/sustitución de instalaciones y acabados de cara a que los vestuarios recuperen las condiciones precisas para su utilización. La intervención no alcanza a la estructura, formada en este cuerpo por forjados unidireccionales y muros de carga de fábrica que hacen las veces de cerramiento de sus fachadas. La intervención en el cerramiento se limita a la sustitución de las carpinterías exteriores. Se realizará la sustitución de gran parte de la tabiquería existente por una nueva tabiquería prefabricada de placas de cartón yeso.


Obras
Se procederá al levantado de las instalaciones de fontanería-saneamiento, electricidad y calefacción (se mantiene la caldera). Se demolerá toda la tabiquería interior, solados y soleras, y se procederá al levantado de la carpintería exterior e interior. Se demolerán alicatados de paramentos y se retirarán todos los sanitarios. Se desmontará el falso techo registrable, con recuperación de placas y perfilería.
Se colocarán nuevas carpinterías exteriores en PVC. Se ejecutará la nueva solera de mortero de cemento, previa colocación de tuberías de distribución de calefacción y colocación de aislante termorreflexivo. Se ejecutará tabiquería de placas de cartón-yeso.
Se renovarán las instalaciones eléctricas y de iluminación (incluso emergencia), de agua fría, saneamiento y ventilación, renovando las partes de las mismas obsoletas. Se instalarán nuevos sanitarios.
Se realizará un nuevo solado en gres porcelánico y se colocará un falso techo de placas de cartón yeso a la máxima altura que permita la estructura existente, de forma que pueda colocarse la instalación de ventilación oculta en falso techo. Sobre el falso techo se colocará manta de aislante termorreflexivo. En cuanto a los paramentos verticales, se alicatarán de suelo a falso techo.
Respecto al refuerzo estructural del forjado, y para evitar la interrupción del servicio, se plantea su refuerzo mediante el pegado de planchas de fibra de carbono en la cara inferior de las viguetas de hormigón. Sobre la estructura metálica existente, se aplicará una pintura intumescente.
El plazo de ejecución estimado para la realización de esta reforma será de dos meses a partir de la firma del acta de replanteo de la obra.
![[Img #91696]](upload/img/periodico/img_91696.jpg)
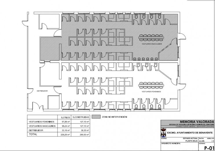
Vestuarios
Actualmente hay 21 vestuarios más uno adaptado a minusválidos, 12 lavabos, 11 duchas y 7 urinarios.
Con la remodelación se reducirá el número de vestuarios fijándose en 11, un vestuario de minusválidos donde tendrá un urinario, un lavabo y una ducha. 11 duchas individuales más una fila de duchas comunitarias y 6 lavabos.
![[Img #91695]](upload/img/periodico/img_91695.jpg)



Normas de participación
Esta es la opinión de los lectores, no la de este medio.
Nos reservamos el derecho a eliminar los comentarios inapropiados.
La participación implica que ha leído y acepta las Normas de Participación y Política de Privacidad
Normas de Participación
Política de privacidad
Por seguridad guardamos tu IP
216.73.216.167