Día Martes, 20 de Enero de 2026
La exposición púbica de la modificación puntual del PGOU tendrá una duración de dos meses a partir de la publicación en el Boletín Oficial de Castilla y León.
Desde el Ayuntamiento se ha iniciado un periodo de información pública por plazo de dos meses mediante anuncio en el B.O.C.Y.L., durante dicho periodo quedará el expediente a disposición de cualquier ciudadano que quiera examinarlo para que se presenten las alegaciones que se estimen pertinentes.
Además se ha acordado la suspensión del otorgamiento de licencias de construcciones de nueva planta, ampliación, demolición y cambio de uso de construcciones e instalaciones, en los bienes afectados por la modificación, que no podrá tener una duración superior a dos años desde la aprobación inicial y que en todo caso se extinguirá con la aprobación definitiva del proyecto en cuestión y en las zonas que se refiere el resumen ejecutivo.
El Plan General de Ordenación Urbana de Benavente, se aprobaba definitivamente el 19 de marzo de 2007, por la C.T.U. de Zamora, siendo publicado en el Boletín Oficial de Castilla y León el 7 de mayo de 2007.
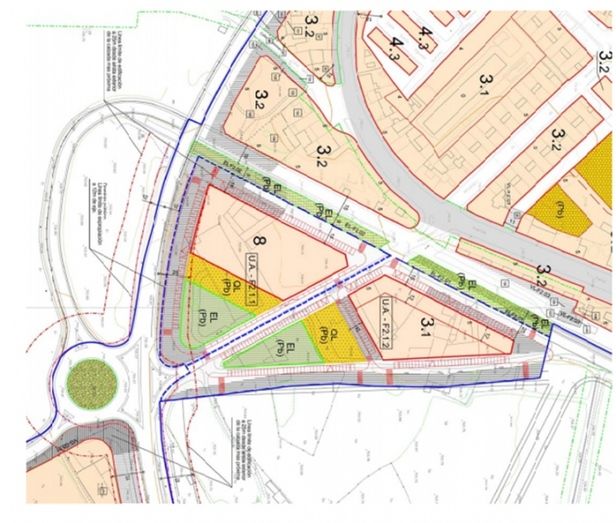
De acuerdo con el vigente P.G.O.U. de Benavente los suelos objeto de la presente Modificación están clasificados como suelo Urbano No Consolidado, estando incluidos en la Ficha de Actuación, Remate Sur Avenida El Ferial, U.A.-F2.1, y localizada en los planos F2, F3, G2 y G3, del citado documento.
![[Img #66348]](upload/img/periodico/img_66348.jpg)
La presente Modificación Puntual, Modificación nº 10, del P.G.O.U. de Benavente tiene como objetivos principales:
Dar respuesta a la demanda de suelo comercial en edificio exclusivo, para lo cual se plantea crear una nueva Norma Zonal 8. Comercial, que defina y regule los parámetros urbanísticos que sean necesarios cumplir para el desarrollo de éste tipo de establecimientos comerciales y generar nuevas plazas de aparcamientos en la zona, objeto de la presente Modificación Puntual, que resuelva la escasez de plazas de aparcamiento en el entorno de la Unidad de Actuación.
En el estudio realizado para esta modificación puntual destacan que el municipio de Benavente sufre d una situación económica adversa debido al cierre de las empresas de mayor numero de trabajadores, fruto de la crisis económica que vive el país y que, en este caso concreto, se ve aumentada por ser un núcleo urbano dependiente de una comarca sobre la que pivota económicamente y que en la actualidad se encuentra con un problema de envejecimiento y por tanto de mayor dependencia económica y social, y sobre la que en la actualidad no existen proyectos económicos dinamizadores.
La generación de la parcela con uso Terciario Comercial con Aparcamiento en una de las Unidades de Actuación resultantes, conlleva la creación de puestos de trabajo directos e indirectos, así como se erige en locomotora de la zona, posibilitando la regeneración urbana del entorno desde varios aspectos: afluencia de público, obtención de fondo de comercio que atraiga nueva inversiones, apertura de nuevos comercios que complementen la oferta comercial y creación de plazas de aparcamiento que resuelvan, al menos parcialmente, los problemas de aparcamiento que en el actualidad existen en la zona.
Por otro lado, se consigue la transformación de los terrenos de unas instalaciones obsoletas y cerradas en la actualidad (almacén de materiales de construcción y fábrica de tripas) en otra actividad comercial con mucho atractivo comercial, que generará nuevas sinergias de empleo, conllevando la regeneración de una zona obsoleta con peligro de degradación que podría llegar a afectar al deterioro del entorno de la citada actuación.
Así mismo, se pretende la Modificación Puntual para dotar al Plan General de Ordenación Urbana de Benavente de una Normativa que permita y desarrolle el uso Terciario Comercial con Aparcamiento, y de ésta manera desarrollar dichas iniciativas con una tramitación directa, evitando gastos innecesarios a los promotores de éstas iniciativas y por consiguiente a la administración municipal y autonómica al reducir las tramitaciones administrativas para todos los intervinientes en las mismas, con lo que conlleva de ahorro económico.
![[Img #66347]](upload/img/periodico/img_66347.jpg)
Los principios fundamentales que justifican la presente Modificación Puntual del PGOU de Benavente son los siguientes: 1
1. La necesidad de dotar al vigente P.G.O.U. de Benavente de una Normativa Comercial que permita el desarrollo de establecimientos comerciales en edificio exclusivo con aparcamiento sin dilaciones administrativas y que consigan la eficiencia en su tramitación, ahorrando costes a todos los intervinientes en el desarrollo de las actuaciones comerciales.
2. La necesidad de revitalizar y activar una zona degradada y sin actividad en la actualidad del municipio de Benavente, desarrollando un establecimiento comercial en edificio exclusivo con aparcamiento que genere beneficios y puestos de trabajo de forma directa a corto plazo dentro del municipio y resuelva, a su vez, la escasa dotación de aparcamientos existentes en la zona.
3. La conveniencia de realizar un urbanismo coherente con los tiempos que corren a través del espíritu presente en todas las leyes e instrumentos de planeamiento, por los que se debe buscar en las actuaciones tanto la sostenibilidad como la calidad de vida de los consumidores finales.




Normas de participación
Esta es la opinión de los lectores, no la de este medio.
Nos reservamos el derecho a eliminar los comentarios inapropiados.
La participación implica que ha leído y acepta las Normas de Participación y Política de Privacidad
Normas de Participación
Política de privacidad
Por seguridad guardamos tu IP
216.73.216.1