Día Viernes, 13 de Marzo de 2026
Los trabajos ya se pueden iniciar al restituir la legalidad de las gradas de las Pistas de Atletismo e instalar el nuevo graderío en el Campo de Fútbol La Rosaleda
Con la retirada de la altura sobrante de las Pistas de Atletismo para dar cumplimiento al Plan General de Ordenación Urbana y la instalación del graderío en el Campo de Fútbol de la Rosaleda, ya se puede avanzar en la siguiente fase que conformaba la licitación de este paquete de obras y que corresponde a dotar de vestuarios las pistas de Atletismo.
Desde el Ayuntamiento de Benavente han confirmado a Interbenavente.es que estos trabajos han tenido que esperar a que se procediera a la legalización del graderío existente mediante el desmontaje y su reubicación. Está previsto que las obras den comienzo a principios de 2021.
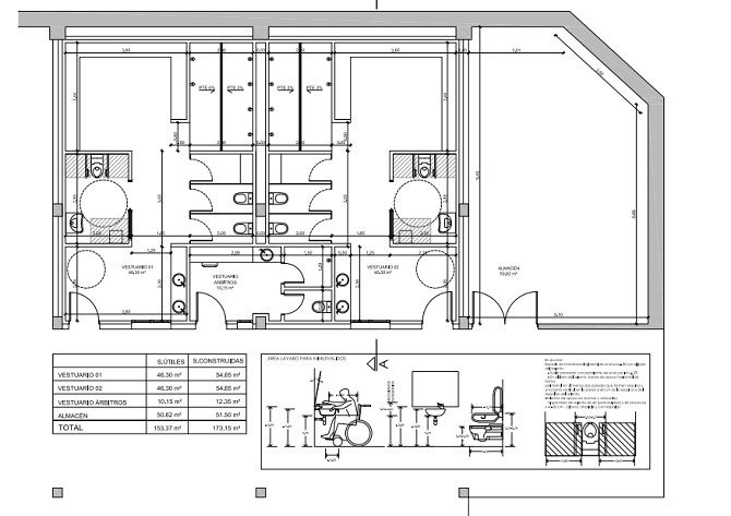
Construcción vestuarios de las Pistas de Atletismo
Las obras a acometer será la demolición de la solera de hormigón existente, para la posterior instalación de saneamiento enterrado. Se ejecutará el saneamiento y nueva solera de hormigón armado con encachado de grava, además se instalará una estructura metálica de cubierta.
Se procederá a la ejecución de cerramientos perimetrales mediante muro de fábrica de bloque de termoarcilla de 14 cm de espesor y trasdosado autoportante de placas de yeso laminado con aislante termoreflexivo. Ejecución de cubierta mediante panel sándwich de chapa con núcleo aislante de poliestireno extruido de 30 mm de espesor.
Ejecución de tabiquerías ligera en interiores mediante entramado de placas de yeso laminado. Ejecución de falso techos de yeso laminado con aislante térmico y de instalaciones de electricidad, iluminación, fontanería, calefacción, ACS con aporte solar, y ventilación. Instalación de sanitarios. Instalación de carpinterías exteriores e interiores. Revestimiento de fachada exterior mediante mortero monocapa.
Los trabajos finalizarán con la ejecución de alicatados y solados cerámicos acabados y pinturas.
![[Img #136698]](https://interbenavente.es/upload/images/12_2020/6443_6552_ayto-en-blanco-bandera.jpg)
![[Img #136697]](https://interbenavente.es/upload/images/12_2020/8937_5344_6594_20200601_124334-prueba-2.jpg)
![[Img #136696]](https://interbenavente.es/upload/images/12_2020/306_sin-titulo.jpg)



Normas de participación
Esta es la opinión de los lectores, no la de este medio.
Nos reservamos el derecho a eliminar los comentarios inapropiados.
La participación implica que ha leído y acepta las Normas de Participación y Política de Privacidad
Normas de Participación
Política de privacidad
Por seguridad guardamos tu IP
216.73.216.21